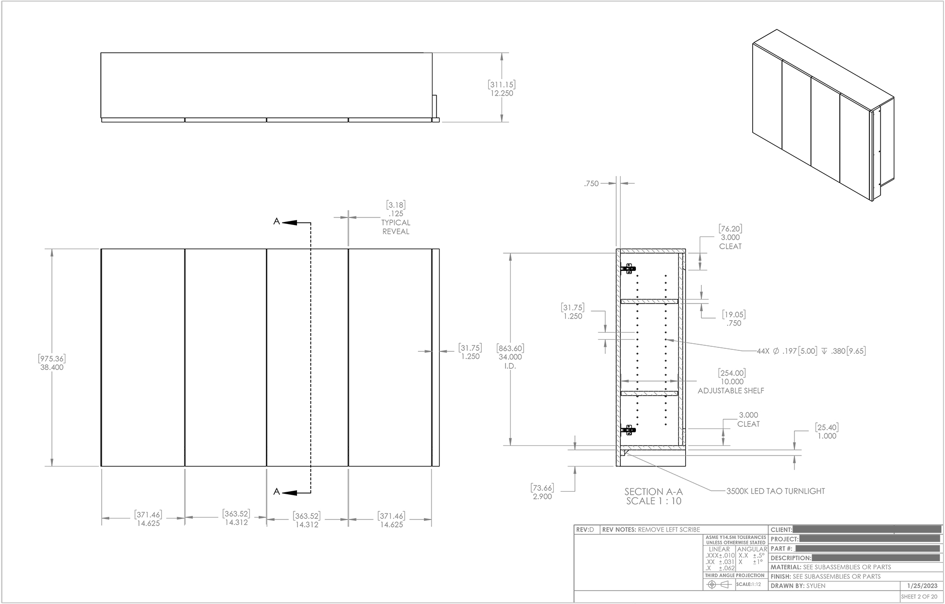
When / Where: 2022-2023 for Astound Group
Objective: Create parametric 3D models for both production and concept development in Solidworks.
Notes: Sample pages only, full drawing packets available for review upon request.
Engineering and Drafting: Simon Yuen



























